

| タイプ |
Jタイプ |
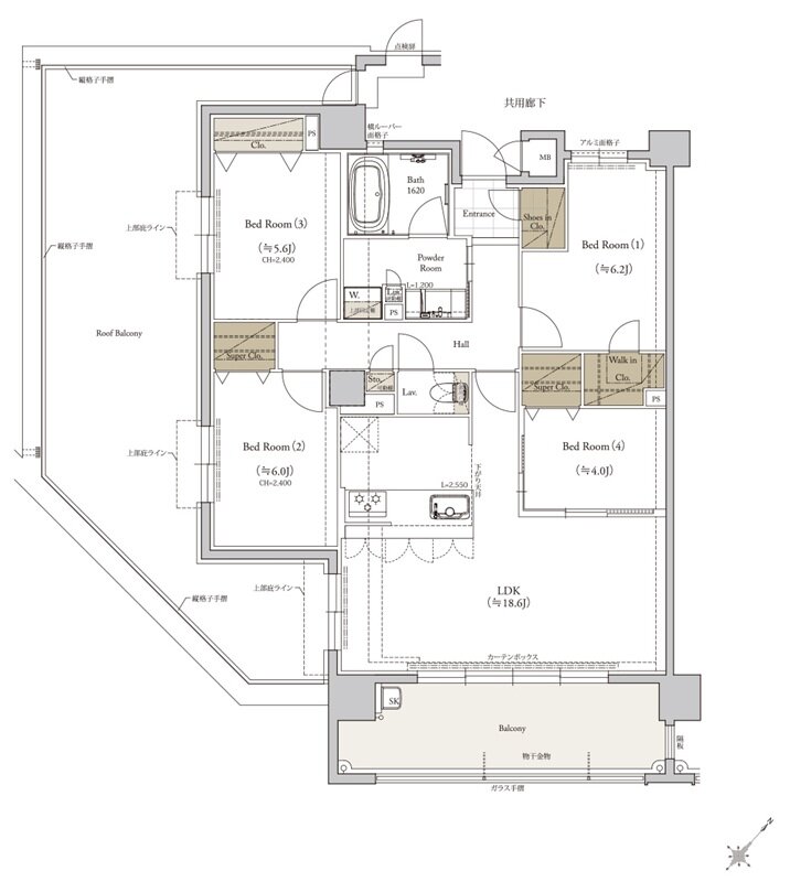
間取り |
4LDK+WIC+2SCL+SIC |
|---|---|---|---|
| 専有面積 |
93.39 ㎡ |
バルコニー面積 |
13.50 ㎡ |
| 所在地 |
福岡県福岡市博多区春町2丁目34番外 |
||
| 交通 |
西鉄天神大牟田線「桜並木」駅 徒歩3分(200m) |
||
| 備考 |
ルーフバルコニー面積:46.62㎡ |
||