

| タイプ |
Gtタイプ |
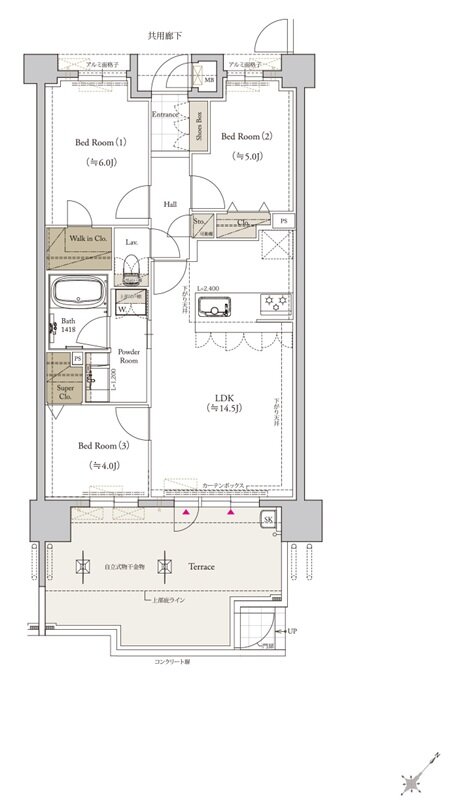
間取り |
3LDK+WIC+SCL |
|---|---|---|---|
| 専有面積 |
65.62 ㎡ |
バルコニー面積 |
- |
| 所在地 |
福岡県福岡市博多区春町2丁目34番外 |
||
| 交通 |
西鉄天神大牟田線「桜並木」駅 徒歩3分(200m) |
||
| 備考 |
テラス面積:19.37㎡ |
||