アットホーム 新築マンション

印刷する

このウィンドウを閉じる

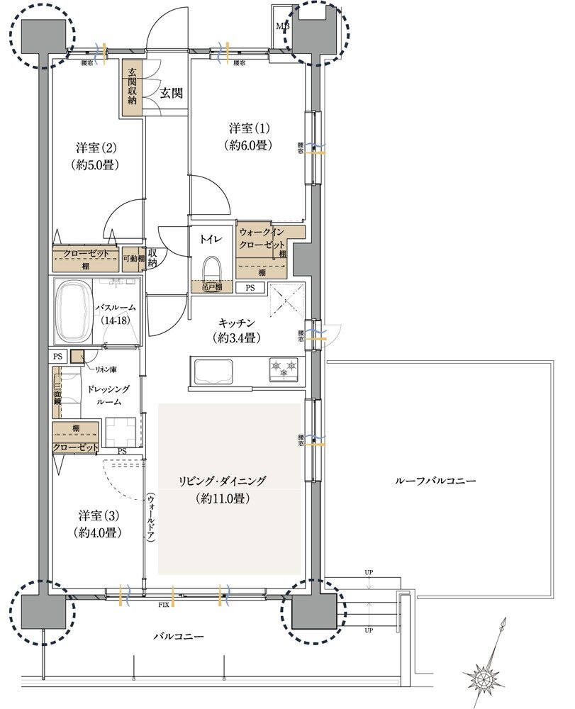
ウエリスサーパス中浦和 Trタイプ

ウエリスサーパス中浦和 間取り Trタイプ
タイプ

Trタイプ

間取り

3LDK+WIC

専有面積

66.70 ㎡

バルコニー面積

13.83 ㎡

所在地

埼玉県さいたま市桜区西堀2丁目643番1(地番)

交通

JR埼京線「中浦和」駅 徒歩8分(約600m)

備考

ルーフバルコニー面積:25.25㎡

  • 可変式間仕切り
  • ウォークインクローゼット
  • 2面バルコニー
  • L字バルコニー
  • ルーフバルコニー
  • 南向き

印刷する

このウィンドウを閉じる

アットホーム Copyright(c) At Home Co.,Ltd. このサイトに掲載している情報の無断転載を禁止します。著作権はアットホーム(株)またはその情報提供者に帰属します。