

| タイプ |
Wタイプ |
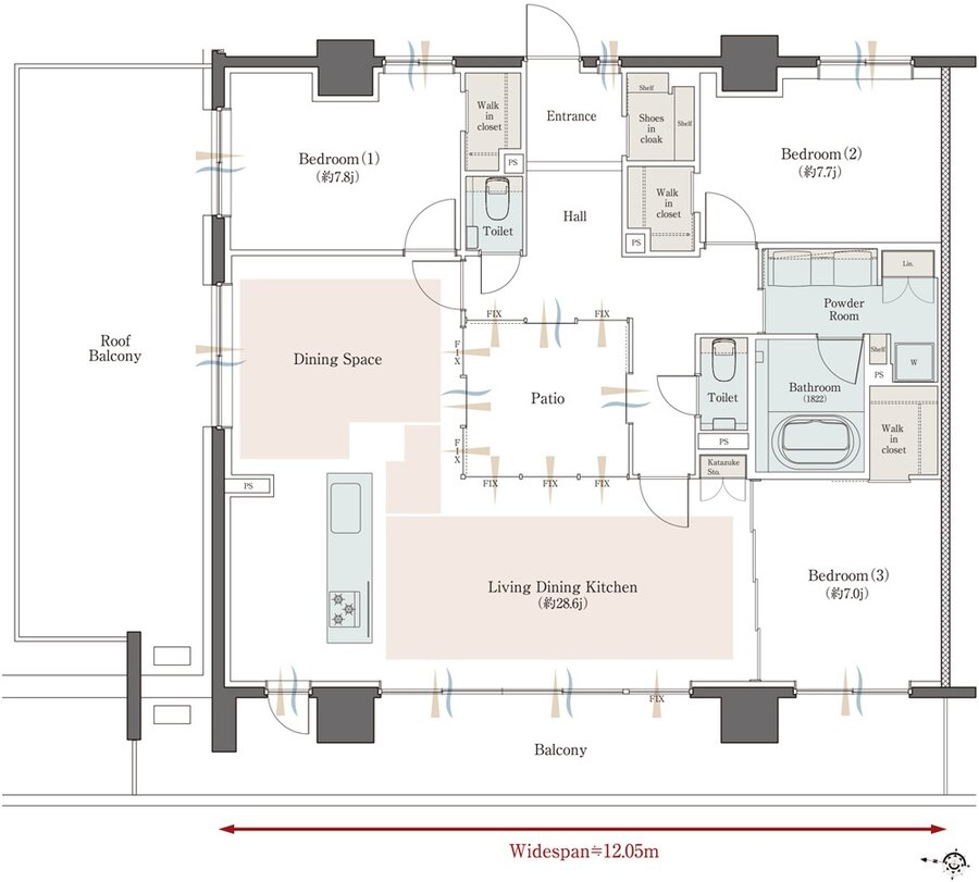
間取り |
3LDK+3WIC+SIC |
|---|---|---|---|
| 専有面積 |
125.92 ㎡ |
バルコニー面積 |
24.21 ㎡ |
| 所在地 |
東京都葛飾区西新小岩4丁目82番1、他(地番) |
||
| 交通 |
JR総武本線「新小岩」駅 徒歩7分 |
||
| 備考 |
ルーフバルコニー面積:33.10㎡ |
||