

| タイプ |
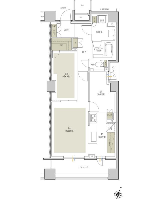
Cタイプ |
間取り |
1LDK+SR+WIC |
|---|---|---|---|
| 専有面積 |
70.16 ㎡ |
バルコニー面積 |
- |
| 所在地 |
東京都千代田区六番町5番18 他(地番) |
||
| 交通 |
JR中央線「四ツ谷」駅 徒歩4分 |
||
| 備考 |
バルコニー1面積:8.94㎡ |
||