

| タイプ |
Fタイプ |
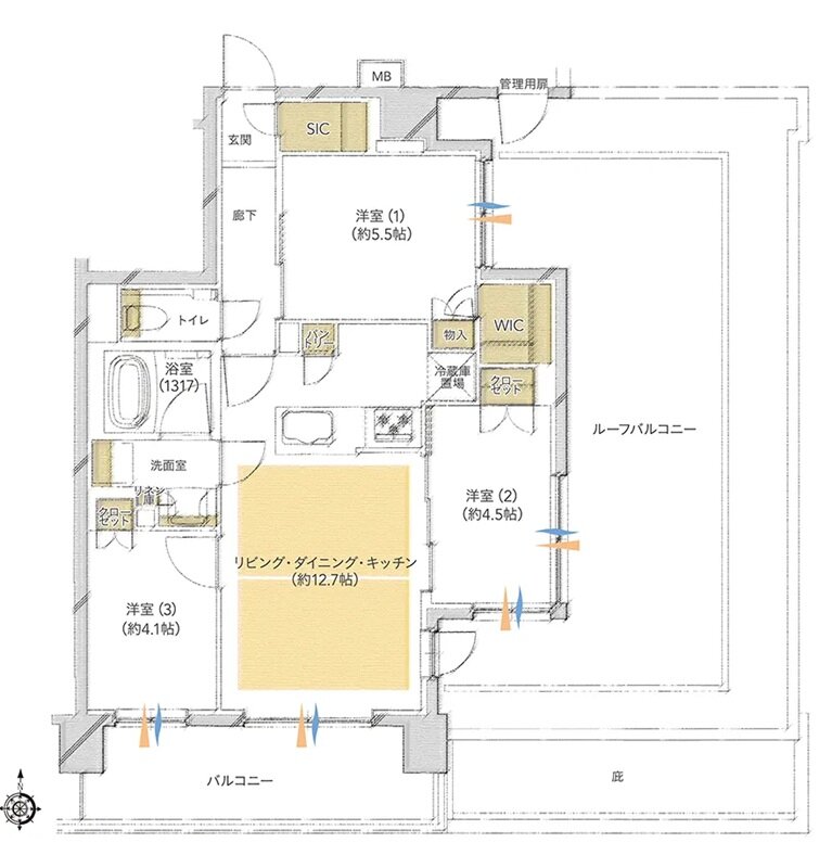
間取り |
3LDK+WIC+SIC |
|---|---|---|---|
| 専有面積 |
62.72 ㎡ |
バルコニー面積 |
9.69 ㎡ |
| 所在地 |
埼玉県さいたま市中央区新中里2丁目704番1(地番) |
||
| 交通 |
JR京浜東北線「北浦和」駅 徒歩15分 |
||
| 備考 |
ルーフバルコニー面積:27.10㎡ |
||