

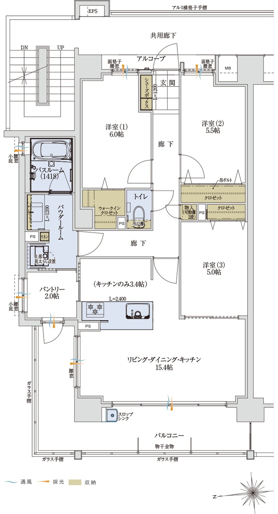
| タイプ |
A type |
間取り |
3LDK+ウォークインクロゼット |
|---|---|---|---|
| 専有面積 |
80.31 ㎡ |
バルコニー面積 |
16.94 ㎡ |
| 所在地 |
福岡県太宰府市五条4丁目2966-1、2966-2、2969-1、2973-2 |
||
| 交通 |
西鉄太宰府線「西鉄五条」駅 徒歩3分 |
||
| 備考 |
アルコーブ面積:2.40㎡ |
||