

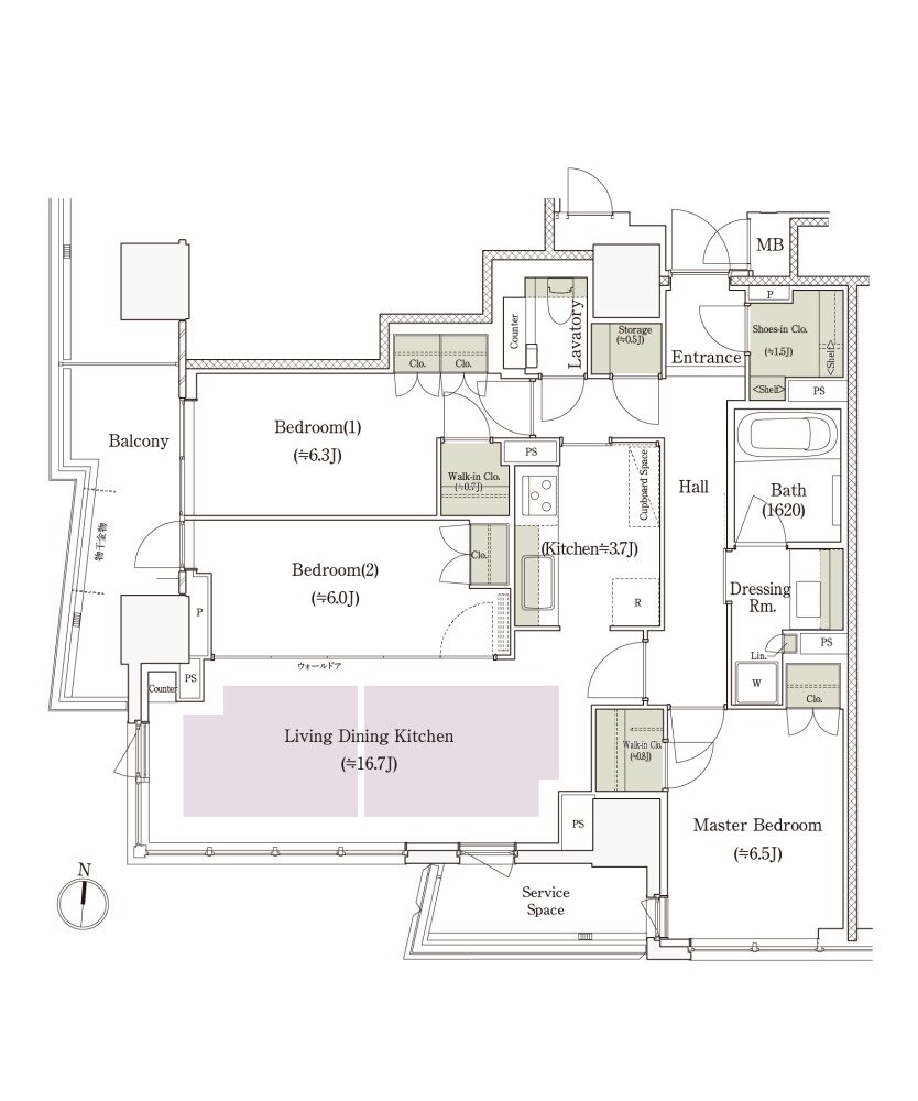
| タイプ |
S-90Gタイプ |
間取り |
3LDK+2WIC+SIC |
|---|---|---|---|
| 専有面積 |
90.00 ㎡ |
バルコニー面積 |
8.51 ㎡ |
| 所在地 |
愛知県名古屋市中区栄2丁目1403番(地番) |
||
| 交通 |
名古屋市東山線「栄」駅 徒歩10分 |
||
| 備考 |
サービススペース面積:4.63㎡ |
||