

| タイプ |
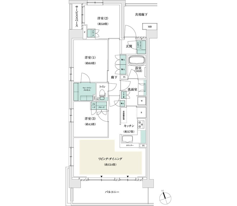
Qタイプ |
間取り |
3LDK+WIC+SIC |
|---|---|---|---|
| 専有面積 |
75.36 ㎡ |
バルコニー面積 |
11.21 ㎡ |
| 所在地 |
神奈川県横浜市青葉区荏田西4丁目7-17(地番) |
||
| 交通 |
東急田園都市線「市が尾」駅 徒歩12分 |
||
| 備考 |
サービススペース面積:1.93㎡ |
||