

| タイプ |
Dr type |
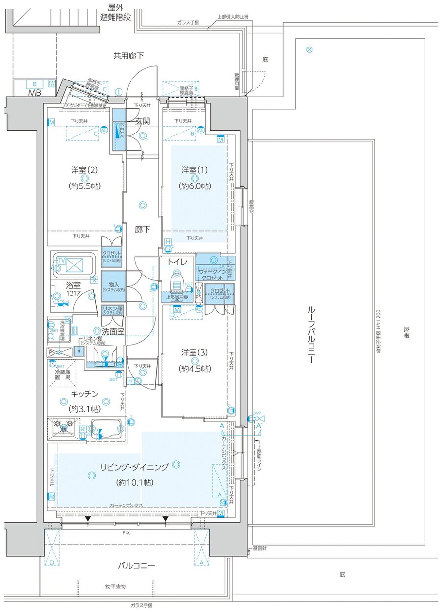
間取り |
3LDK+WIC |
|---|---|---|---|
| 専有面積 |
65.52 ㎡ |
バルコニー面積 |
10.40 ㎡ |
| 所在地 |
宮城県仙台市泉区八乙女中央3丁目204-8(地番) |
||
| 交通 |
仙台市南北線「八乙女」駅 徒歩4分 |
||
| 備考 |
ルーフバルコニー面積:38.16㎡ |
||