

| タイプ |
D TYPE |
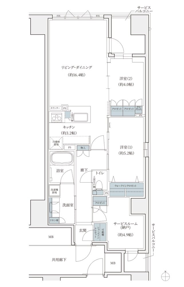
間取り |
2LDK+S+WIC+SIC |
|---|---|---|---|
| 専有面積 |
70.01 ㎡ |
バルコニー面積 |
- |
| 所在地 |
京都府京都市下京区室町通五条下る大黒町196番 |
||
| 交通 |
地下鉄烏丸線「五条」駅 徒歩1分 |
||
| 備考 |
サービスバルコニー面積:1.75㎡ |
||