

| タイプ |
PD type |
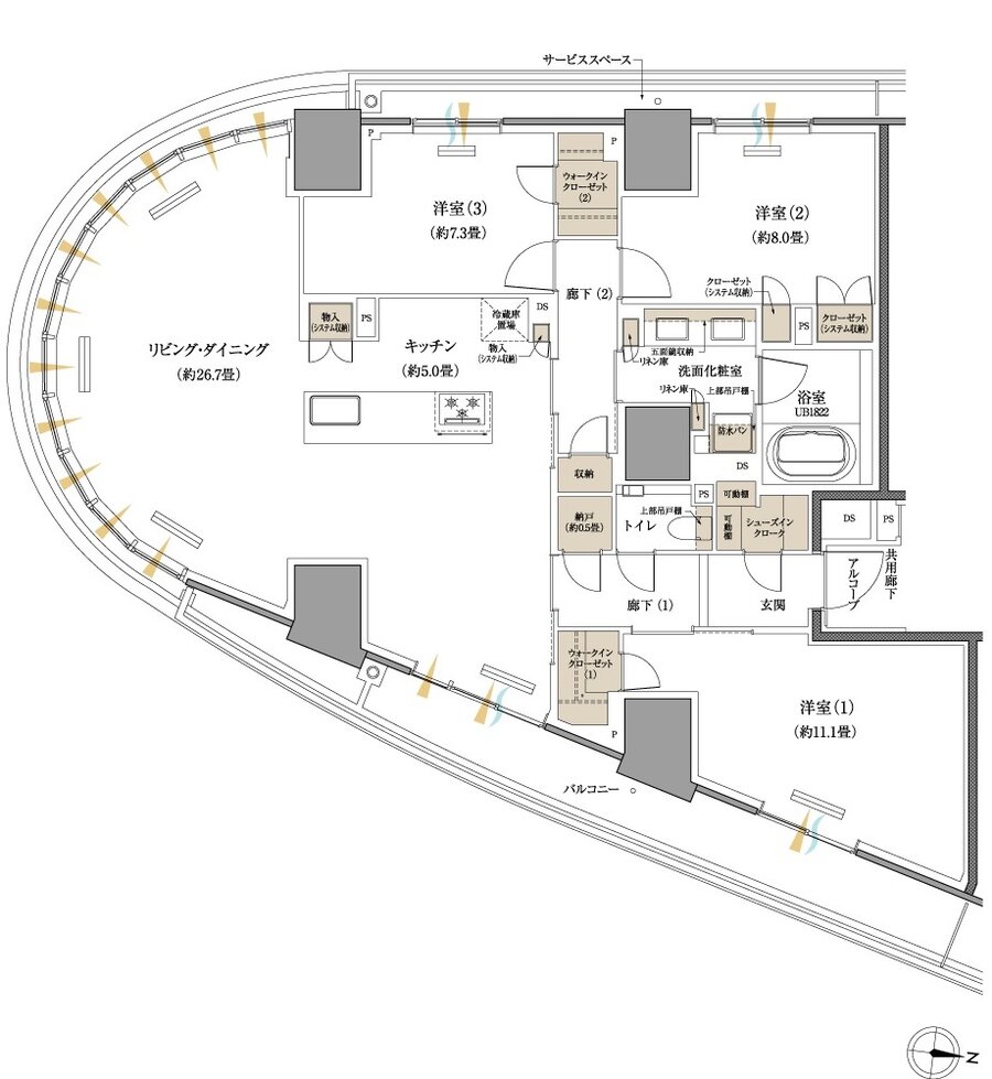
間取り |
3LDK+N+2WIC+SIC |
|---|---|---|---|
| 専有面積 |
127.06 ㎡ |
バルコニー面積 |
15.78 ㎡ |
| 所在地 |
東京都北区赤羽2丁目3番21、23(地番) |
||
| 交通 |
JR京浜東北線「赤羽」駅 徒歩6分 |
||
| 備考 |
サービススペース面積:6.17㎡ |
||