

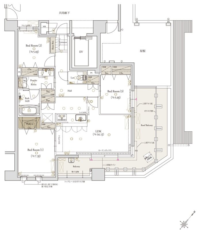
| タイプ |
Hタイプ |
間取り |
3LDK+WIC+Pantry |
|---|---|---|---|
| 専有面積 |
80.59 ㎡ |
バルコニー面積 |
5.52 ㎡ |
| 所在地 |
福岡県福岡市南区大橋3丁目249番1、2 |
||
| 交通 |
西鉄天神大牟田線「大橋」駅 徒歩11分(約860m) |
||
| 備考 |
ルーフバルコニー面積:13.91㎡ |
||