

| タイプ |
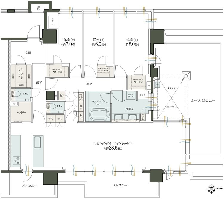
E-Yタイプ |
間取り |
3LDK+3WIC+SIC+P |
|---|---|---|---|
| 専有面積 |
133.02 ㎡ |
バルコニー面積 |
17.44 ㎡ |
| 所在地 |
東京都立川市曙町1丁目14番13、他(地番) |
||
| 交通 |
JR中央線「立川」駅 徒歩7分 |
||
| 備考 |
ルーフバルコニー面積 26.20㎡ |
||