

| タイプ |
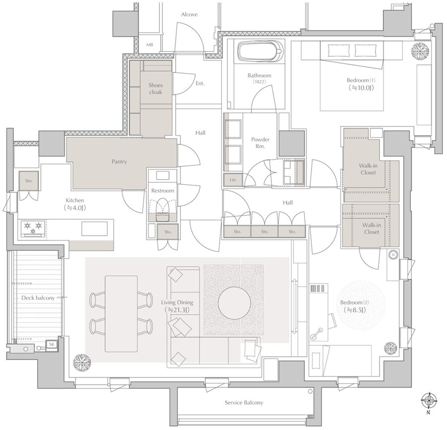
Cタイプ |
間取り |
2LDK+2WIC+P+SC |
|---|---|---|---|
| 専有面積 |
122.41 ㎡ |
バルコニー面積 |
- |
| 所在地 |
愛知県名古屋市東区白壁4丁目36番他(地番) |
||
| 交通 |
名鉄瀬戸線「清水」駅 徒歩10分 |
||
| 備考 |
※専有面積にトランクルーム面積:3.90㎡含む |
||