

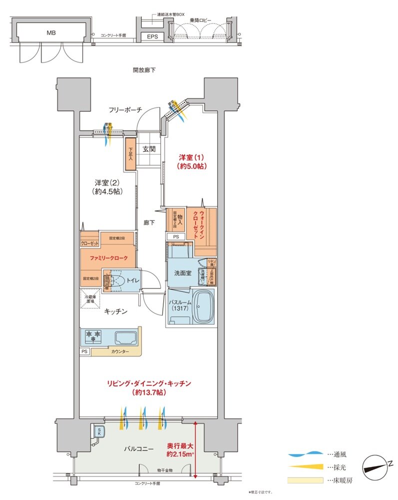
| タイプ |
B3 type menu2 |
間取り |
2LDK+WIC+FC |
|---|---|---|---|
| 専有面積 |
58.14 ㎡ |
バルコニー面積 |
11.61 ㎡ |
| 所在地 |
広島県広島市東区光町2丁目7-2(地番) |
||
| 交通 |
JR山陽本線「広島」駅 徒歩7分 |
||
| 備考 |
MB面積:0.63㎡ |
||