

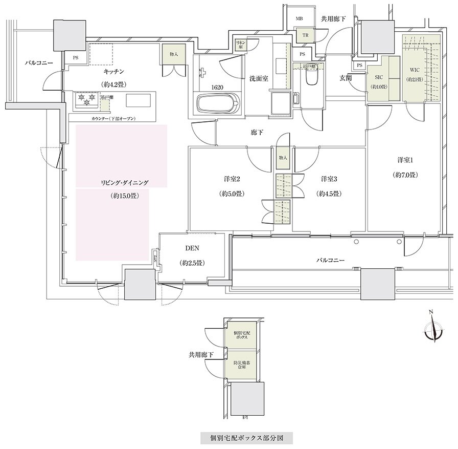
| タイプ |
S92P |
間取り |
3LDK+DEN+WIC+SIC |
|---|---|---|---|
| 専有面積 |
92.68 ㎡ |
バルコニー面積 |
17.40 ㎡ |
| 所在地 |
大阪府大阪市天王寺区城南寺町3番1(地番) |
||
| 交通 |
近鉄奈良線「大阪上本町」駅 徒歩8分(11番出入口) |
||
| 備考 |
個別宅配ボックス面積:1.08㎡ |
||