

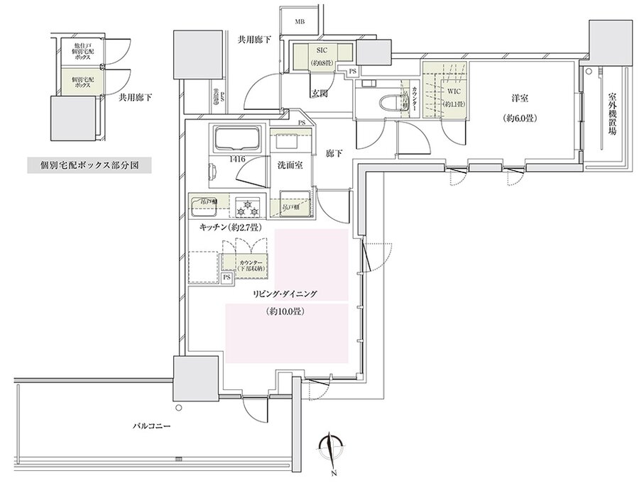
| タイプ |
G49A |
間取り |
1LDK+WIC+SIC |
|---|---|---|---|
| 専有面積 |
49.40 ㎡ |
バルコニー面積 |
13.24 ㎡ |
| 所在地 |
大阪府大阪市天王寺区城南寺町3番1(地番) |
||
| 交通 |
近鉄奈良線「大阪上本町」駅 徒歩8分(11番出入口) |
||
| 備考 |
個別宅配ボックス面積:0.83㎡ |
||