

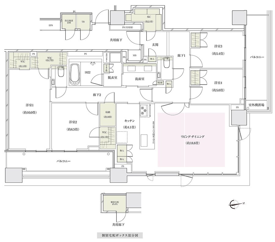
| タイプ |
P136G |
間取り |
4LDK+ST+3WIC+SIC |
|---|---|---|---|
| 専有面積 |
136.47 ㎡ |
バルコニー面積 |
22.11 ㎡ |
| 所在地 |
大阪府大阪市天王寺区城南寺町3番1(地番) |
||
| 交通 |
近鉄奈良線「大阪上本町」駅 徒歩8分(11番出入口) |
||
| 備考 |
個別宅配ボックス面積:1.92㎡ |
||