

| タイプ |
S91O |
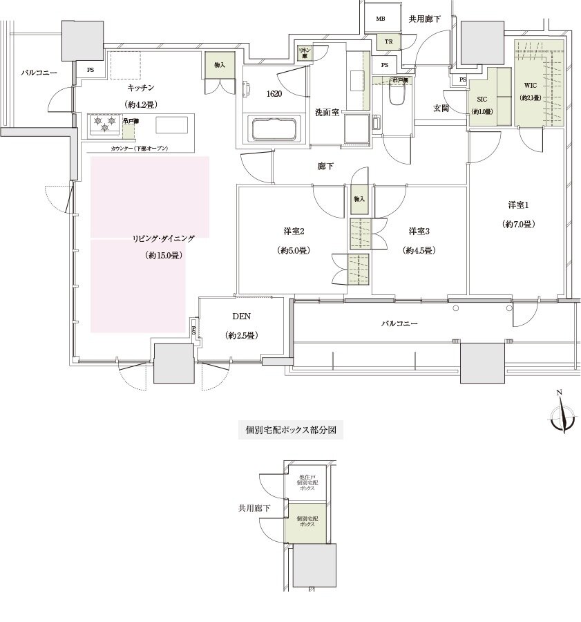
間取り |
3LDK+WIC+SIC+DEN |
|---|---|---|---|
| 専有面積 |
91.60 ㎡ |
バルコニー面積 |
17.40 ㎡ |
| 所在地 |
大阪府大阪市天王寺区城南寺町3番1(地番) |
||
| 交通 |
近鉄奈良線「大阪上本町」駅 徒歩8分(11番出入口) |
||
| 備考 |
個別宅配ボックス面積:1.21㎡ |
||