

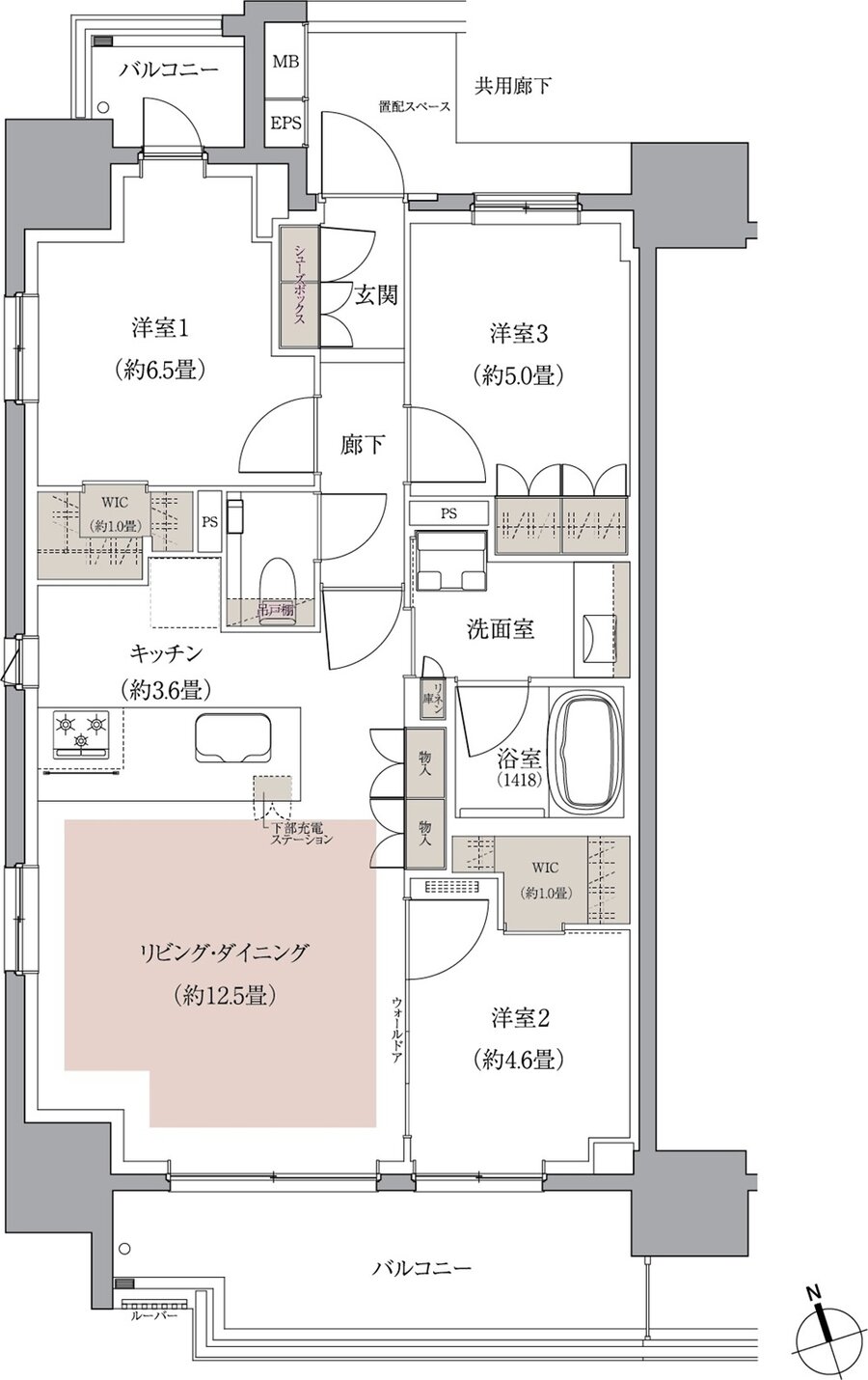
| タイプ |
F TYPE |
間取り |
3LDK+2WIC |
|---|---|---|---|
| 専有面積 |
72.03 ㎡ |
バルコニー面積 |
12.49 ㎡ |
| 所在地 |
千葉県船橋市宮本1丁目6番1号(地番) |
||
| 交通 |
JR総武本線「船橋」駅 徒歩10分※南口 |
||
| 備考 |
※置き配スペース面積 3.75㎡(エアコン室外機置場面積を含む) |
||