

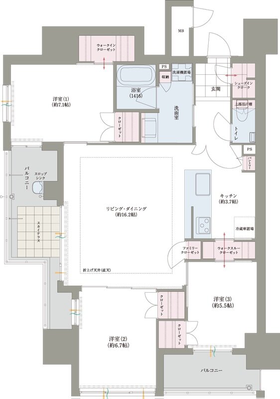
| タイプ |
88-B TYPE |
間取り |
3LDK+WIC+WTC+FC+P+SIC |
|---|---|---|---|
| 専有面積 |
88.49 ㎡ |
バルコニー面積 |
15.47 ㎡ |
| 価格 |
4780万円 |
||
| 所在地 |
徳島県徳島市吉野本町4丁目43番4、43番10、44番1、44番12 |
||
| 交通 |
バス利用:バス停「八幡社前」 停歩1分[徳島バス] |
||
| 備考 |
※バルコニー面積にスカイテラス面積を含む |
||