印刷する
このウィンドウを閉じる
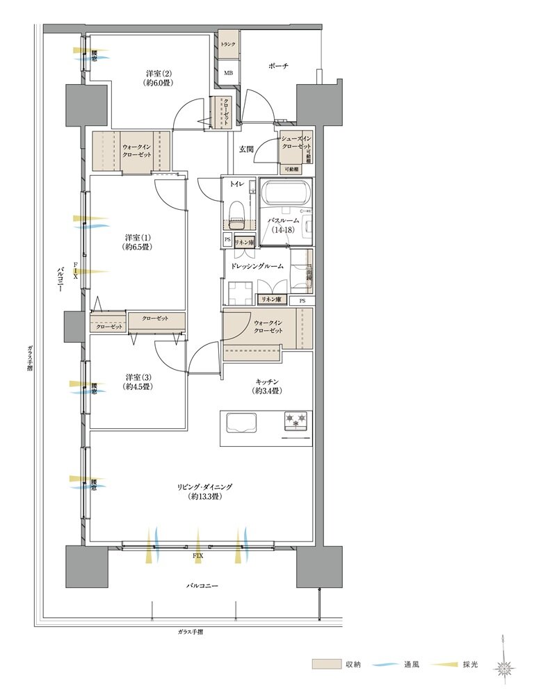
Bタイプ
3LDK+2WIC+SIC
84.00 ㎡
32.09 ㎡
香川県高松市錦町1丁目253-1(地番)
JR予讃線「高松」駅 徒歩9分(約710m) JR高徳線「高松」駅 徒歩9分(約710m)
専有面積にトランク面積0.52㎡含む