

| タイプ |
Nタイプ |
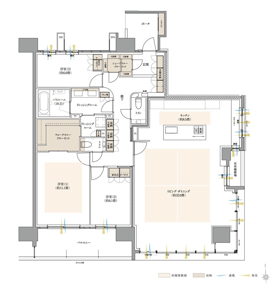
間取り |
3LDK+WIC+STC |
|---|---|---|---|
| 専有面積 |
148.81 ㎡ |
バルコニー面積 |
12.94 ㎡ |
| 所在地 |
香川県高松市錦町1丁目253-1(地番) |
||
| 交通 |
JR予讃線「高松」駅 徒歩9分(約710m) |
||
| 備考 |
専有面積にトランク面積0.79㎡含む |
||