

| タイプ |
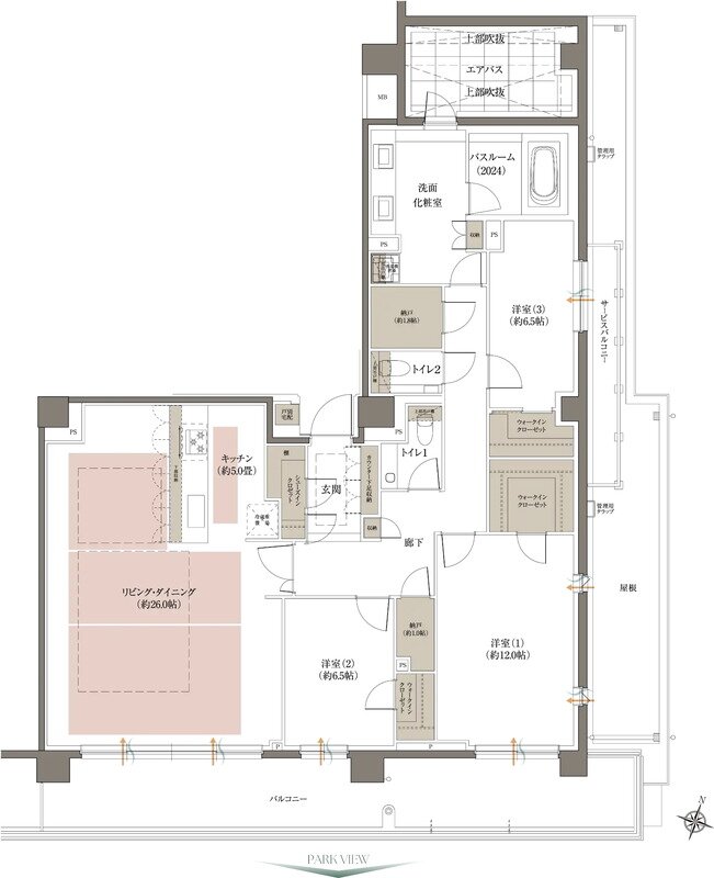
Jタイプ OPEN AIR |
間取り |
3LDK+2N+3WIC+SIC+AB |
|---|---|---|---|
| 専有面積 |
150.01 ㎡ |
バルコニー面積 |
26.16 ㎡ |
| 所在地 |
兵庫県芦屋市前田町115番10、115番11 |
||
| 交通 |
阪急神戸線「芦屋川」駅 徒歩8分 |
||
| 備考 |
サービスバルコニー面積:5.31㎡ |
||