

| タイプ |
80-A TYPE |
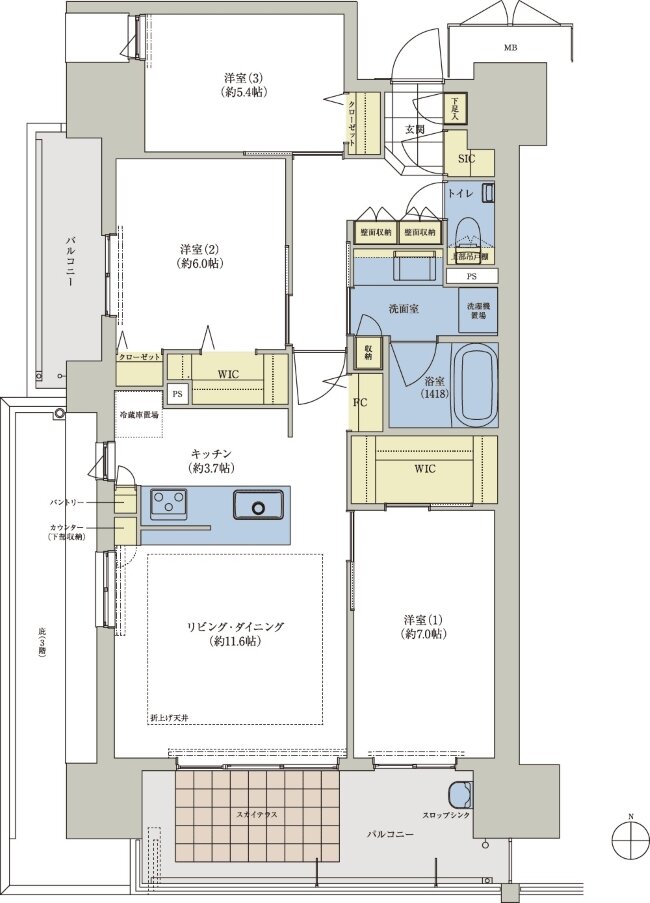
間取り |
3LDK+2WIC+FC+P+SIC |
|---|---|---|---|
| 専有面積 |
80.15 ㎡ |
バルコニー面積 |
- |
| 所在地 |
岡山県岡山市北区天神町1-101,102,117,118(地番) |
||
| 交通 |
岡山電軌東山本線「城下」駅 徒歩2分 |
||
| 備考 |
バルコニー面積/[2階]17.86㎡[3〜14階]17.59㎡ |
||