

| タイプ |
E type【MANU PLAN1】 |
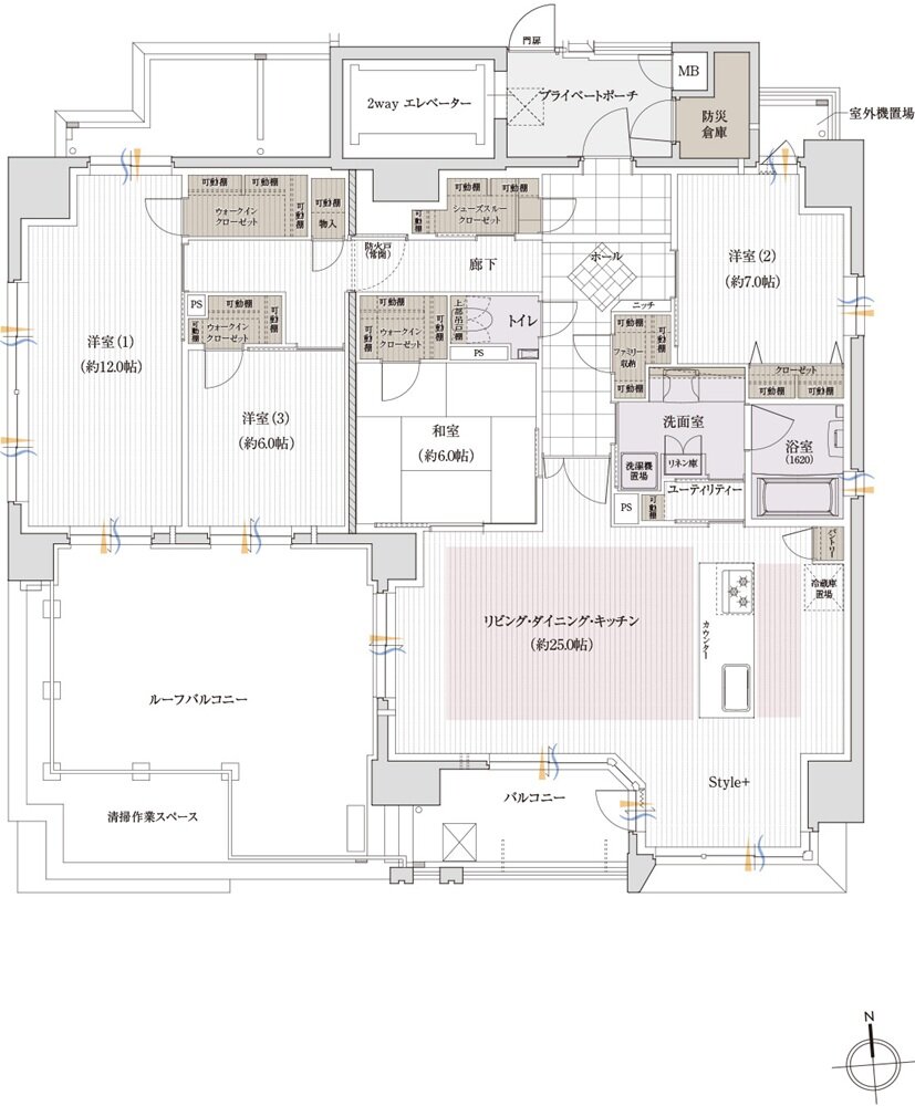
間取り |
4LDK |
|---|---|---|---|
| 専有面積 |
136.41 ㎡ |
バルコニー面積 |
7.52 ㎡ |
| 所在地 |
愛媛県松山市岩崎町1丁目243番1(地番) |
||
| 交通 |
伊予鉄道城南線「道後公園」駅 徒歩3分 |
||
| 備考 |
※専有面積に防災倉庫面積:2.22㎡含む |
||