

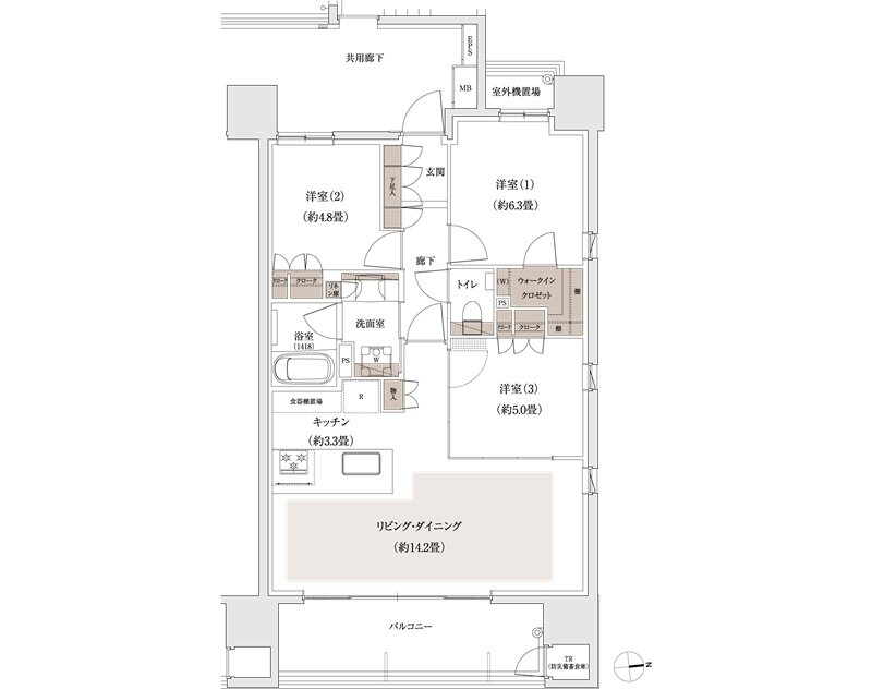
| タイプ |
H1タイプ |
間取り |
3LDK+WIC |
|---|---|---|---|
| 専有面積 |
73.40 ㎡ |
バルコニー面積 |
11.74 ㎡ |
| 所在地 |
福岡県福岡市中央区荒戸3丁目104-1(地番) |
||
| 交通 |
地下鉄空港線「大濠公園」駅 徒歩7分 |
||
| 備考 |
※専有面積にTR(防災備蓄倉庫)面積0.85㎡を含む |
||