

| タイプ |
D2 TYPE |
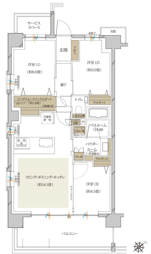
間取り |
3LDK+BW |
|---|---|---|---|
| 専有面積 |
66.34 ㎡ |
バルコニー面積 |
11.70 ㎡ |
| 所在地 |
千葉県松戸市根本字大道下176番1(地番) |
||
| 交通 |
JR常磐線「松戸」駅 徒歩10分 |
||
| 備考 |
サービススペース面積:2.71㎡ |
||