アットホーム 新築マンション

印刷する

このウィンドウを閉じる

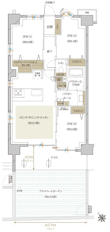
ヴェレーナ松戸レジデンス A1g TYPE

ヴェレーナ松戸レジデンス 間取り A1g TYPE
タイプ

A1g TYPE

間取り

3LDK+BW+T+PG

専有面積

66.22 ㎡

バルコニー面積

-

所在地

千葉県松戸市根本字大道下176番1(地番)

交通

JR常磐線「松戸」駅 徒歩10分
JR千代田・常磐緩行線「松戸」駅 徒歩10分
京成松戸線「松戸」駅 徒歩10分

備考

テラス面積:10.80㎡
プライベートガーデン面積:22.71㎡

  • 可変式間仕切り
  • ウォークインクローゼット
  • テラス
  • 専用庭
  • 南西向き

印刷する

このウィンドウを閉じる

アットホーム Copyright(c) At Home Co.,Ltd. このサイトに掲載している情報の無断転載を禁止します。著作権はアットホーム(株)またはその情報提供者に帰属します。