

| タイプ |
Dタイプ(イノバス博多呉服) |
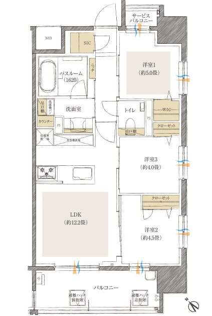
間取り |
3LDK+WIC+SIC |
|---|---|---|---|
| 専有面積 |
60.24 ㎡ |
バルコニー面積 |
9.45 ㎡ |
| 所在地 |
福岡県福岡市博多区神屋町165番2(地番)(イノバス博多神屋) |
||
| 交通 |
地下鉄箱崎線「呉服町」駅 徒歩5分(イノバス博多呉服) |
||
| 備考 |
サービスバルコニー面積:1.39㎡ |
||