

| タイプ |
L type |
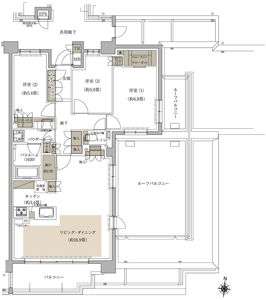
間取り |
3LDK+WIC+N(納戸)+TR |
|---|---|---|---|
| 専有面積 |
85.59 ㎡ |
バルコニー面積 |
8.76 ㎡ |
| 所在地 |
神奈川県大和市中央林間5丁目4146番8 |
||
| 交通 |
小田急江ノ島線「中央林間」駅 徒歩5分 |
||
| 備考 |
※専有面積にはトランクルーム面積(0.30㎡)が含まれております |
||