

| タイプ |
A type |
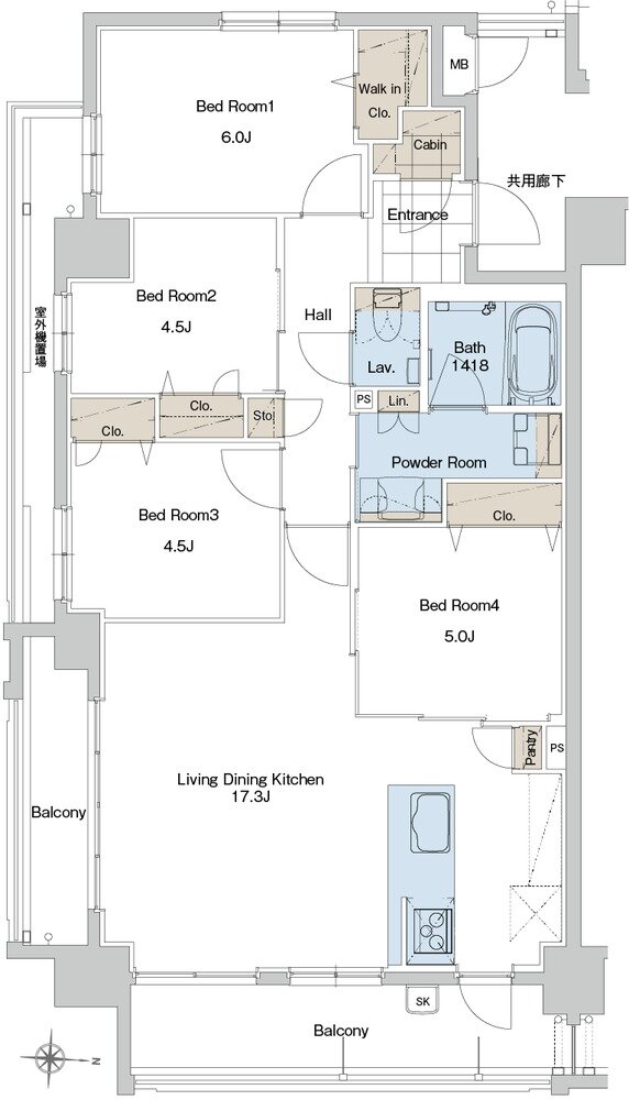
間取り |
4LDK+WIC+Cabin+2BAL |
|---|---|---|---|
| 専有面積 |
81.57 ㎡ |
バルコニー面積 |
13.68 ㎡ |
| 所在地 |
福岡県福岡市早良区荒江2丁目92番1 |
||
| 交通 |
地下鉄空港線「西新」駅 徒歩17分(1,310m) |
||
| 備考 |
専有面積※2~8階 |
||