アットホーム 新築マンション

印刷する

このウィンドウを閉じる

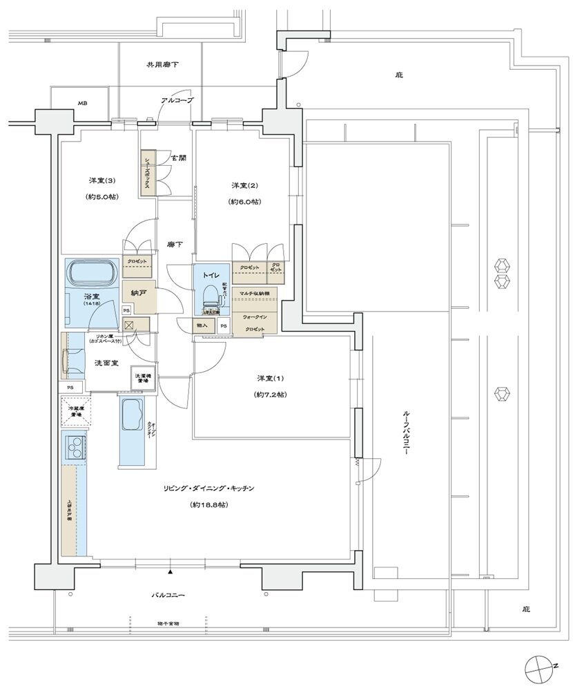
シエリア島本 W TYPE

シエリア島本 間取り W TYPE
タイプ

W TYPE

間取り

3LDK+WIC+N

専有面積

81.88 ㎡

バルコニー面積

17.12 ㎡

所在地

大阪府三島郡島本町百山794-5他

交通

JR東海道本線「島本」駅 徒歩8分
阪急京都線「水無瀬」駅 徒歩14分

備考

ルーフバルコニー面積:34.83㎡
アルコーブ面積:4.27㎡

  • アルコーブ
  • ウォークインクローゼット
  • 出入口が2か所以上あるキッチン
  • 2面バルコニー
  • ルーフバルコニー
  • 東向き

印刷する

このウィンドウを閉じる

アットホーム Copyright(c) At Home Co.,Ltd. このサイトに掲載している情報の無断転載を禁止します。著作権はアットホーム(株)またはその情報提供者に帰属します。