
タイプ |
A type |
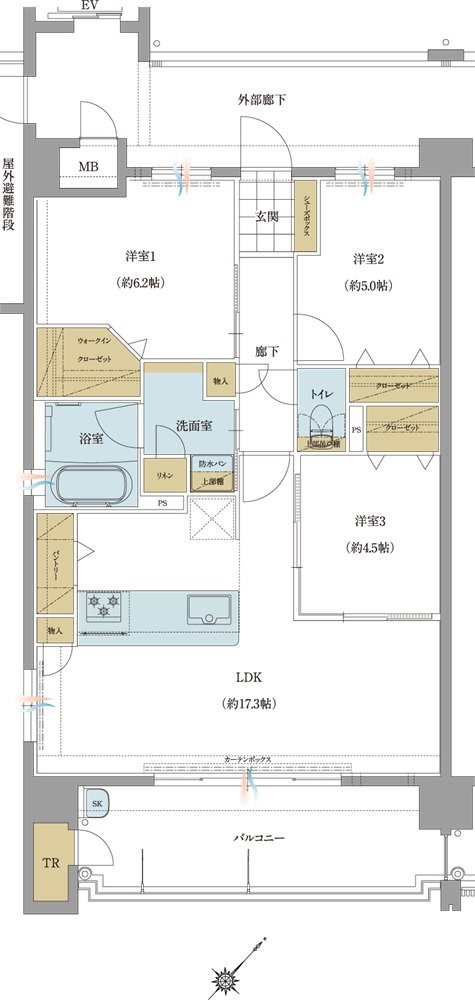
間取り |
3LDK+WIC+TR |
---|---|---|---|
専有面積 |
75.04 ㎡ |
バルコニー面積 |
12.76 ㎡ |
所在地 |
福岡県大野城市白木原5丁目2番1[地番] |
||
交通 |
西鉄天神大牟田線「白木原」駅 徒歩9分 |
||
備考 |
トランクルーム面積:1.61㎡ |