

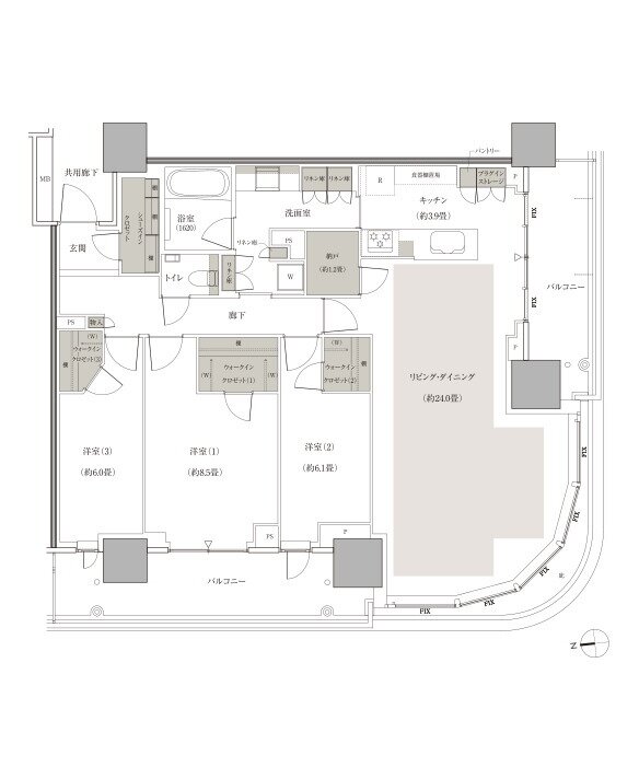
| タイプ |
Sw114tタイプ |
間取り |
3LDK+3WIC+SIC+N |
|---|---|---|---|
| 専有面積 |
114.08 ㎡ |
バルコニー面積 |
23.97 ㎡ |
| 所在地 |
千葉県千葉市美浜区若葉3丁目1-21(地番) |
||
| 交通 |
JR京葉線「海浜幕張」駅 徒歩15分【北口利用】※京葉線「海浜幕張」駅 徒歩14分【公園改札口(7:00-22:00)利用】 |
||
| 備考 |
TR面積:0.80㎡ |
||