

| タイプ |
W3r type |
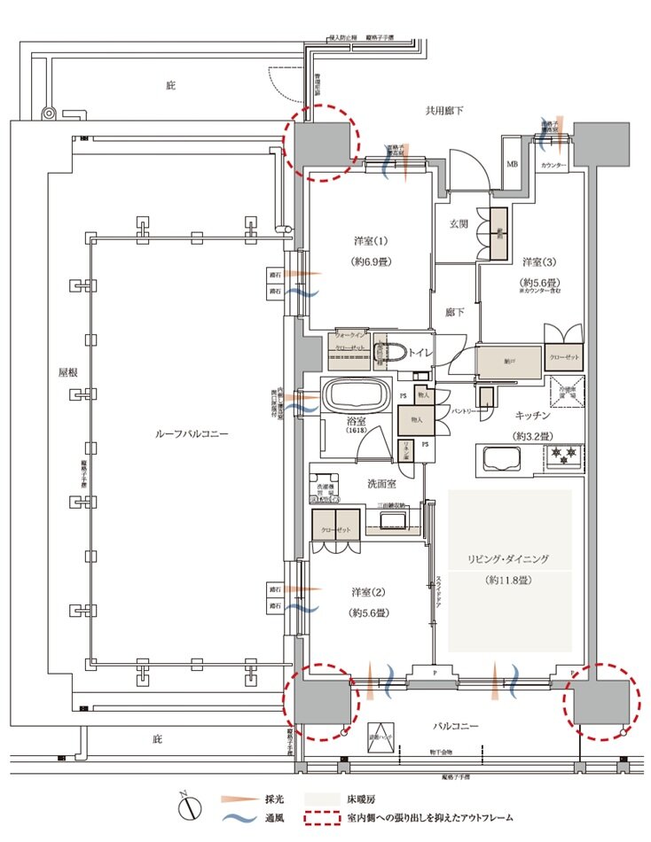
間取り |
3LDK+N+WIC |
|---|---|---|---|
| 専有面積 |
74.75 ㎡ |
バルコニー面積 |
11.33 ㎡ |
| 所在地 |
東京都調布市多摩川4丁目15番地4の一部外 |
||
| 交通 |
京王相模原線「京王多摩川」駅 徒歩2分 |
||
| 備考 |
ルーフバルコニー面積:42.75㎡ |
||