

| タイプ |
Dα TYPE |
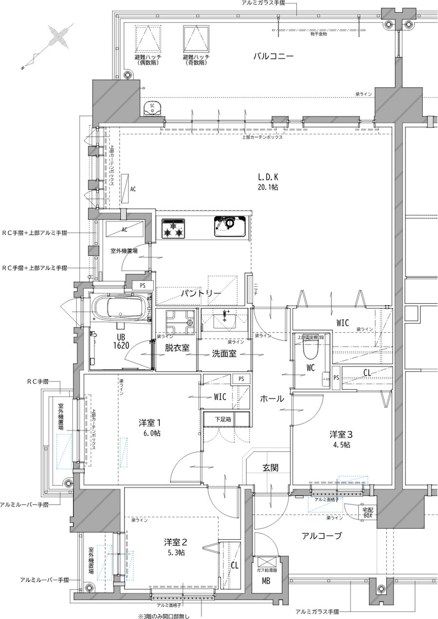
間取り |
3LDK+W |
|---|---|---|---|
| 専有面積 |
85.05 ㎡ |
バルコニー面積 |
18.78 ㎡ |
| 所在地 |
山口県下関市南部町8-1他7筆 |
||
| 交通 |
バス利用:バス停「唐戸」 停歩2分(サンデン交通) |
||
| 備考 |
アルコーブ面積:7.24㎡ |
||