アットホーム 新築マンション

印刷する

このウィンドウを閉じる

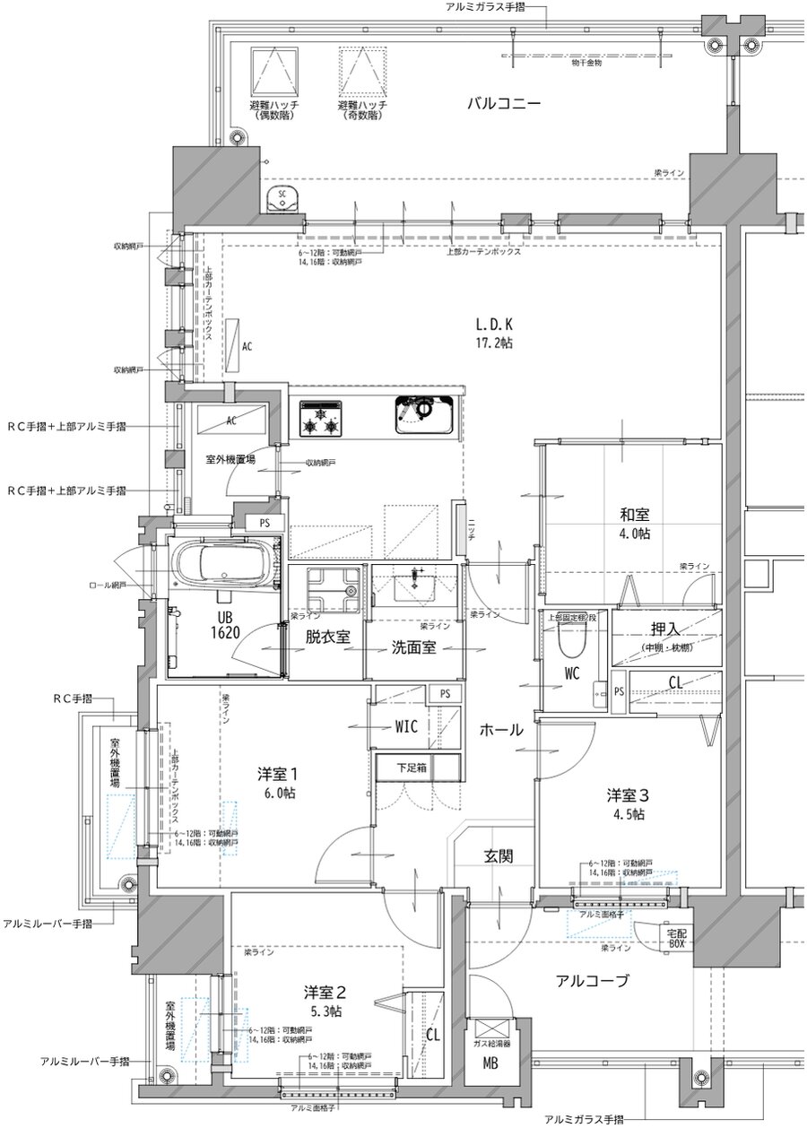
リヴィエールタワー下関海峡ヴィラ D TYPE

リヴィエールタワー下関海峡ヴィラ 間取り D TYPE
タイプ

D TYPE

間取り

4LDK

専有面積

85.05 ㎡

バルコニー面積

18.78 ㎡

所在地

山口県下関市南部町8-1他7筆

交通

バス利用:バス停「唐戸」 停歩2分(サンデン交通)

備考

アルコーブ面積:7.24㎡
室外機置場面積:6.05㎡

  • アルコーブ
  • 和室付き
  • ウォークインクローゼット
  • 浴室に窓
  • 2面バルコニー
  • スロップシンク
  • 西向き

印刷する

このウィンドウを閉じる

アットホーム Copyright(c) At Home Co.,Ltd. このサイトに掲載している情報の無断転載を禁止します。著作権はアットホーム(株)またはその情報提供者に帰属します。