

| タイプ |
Fタイプ |
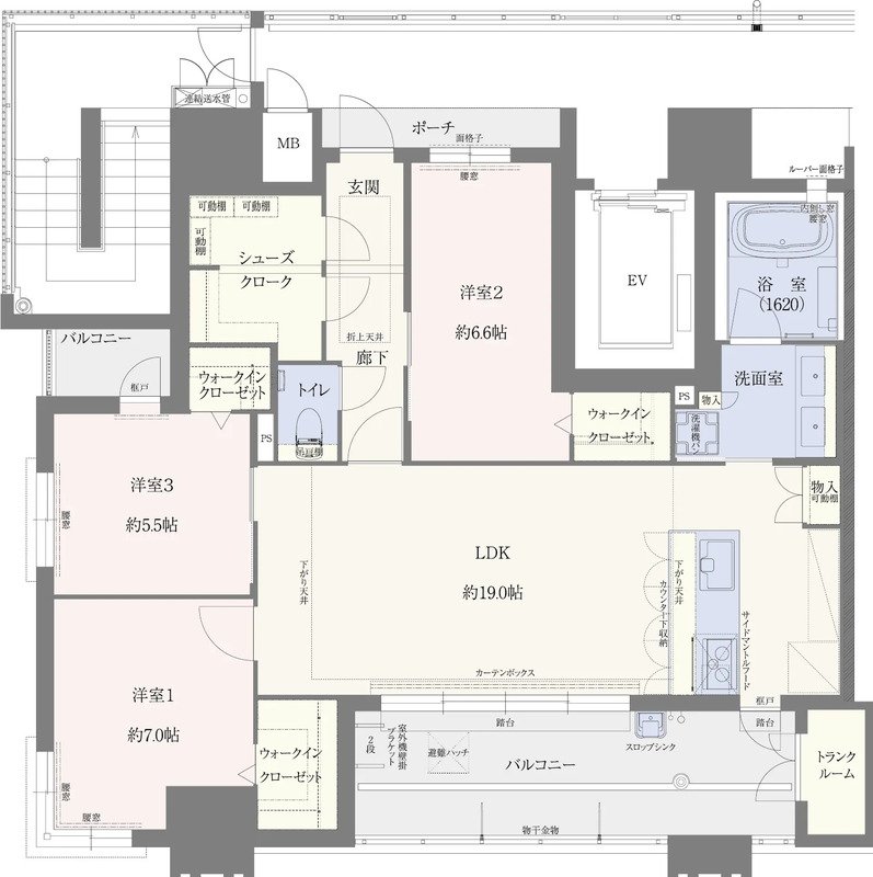
間取り |
3LDK+3WIC+SC |
|---|---|---|---|
| 専有面積 |
93.07 ㎡ |
バルコニー面積 |
15.77 ㎡ |
| 所在地 |
鹿児島県鹿児島市上荒田町38番14、38番16(地番) |
||
| 交通 |
鹿児島市電唐湊線「市立病院前」駅 徒歩4分(約270m) |
||
| 備考 |
ポーチ面積:4.63㎡ |
||