

| タイプ |
Dタイプ【D棟】 |
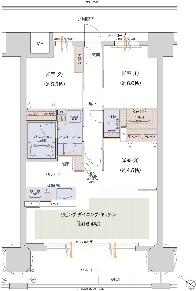
間取り |
3LDK+WIC |
|---|---|---|---|
| 専有面積 |
72.10 ㎡ |
バルコニー面積 |
12.49 ㎡ |
| 所在地 |
大阪府大阪市都島区都島南通2丁目363-8(地番)(Bloomy),363番9(地番)(Calm),363-10(地番)(Dear),355-9(地番)(Ease) |
||
| 交通 |
地下鉄長堀鶴見緑地線「京橋」駅 徒歩6分(Ease)、徒歩7分(Dear)、徒歩8分(Calm)、徒歩9分(Bloomy,アルミラ) |
||
| 備考 |
プレサンス ロジェ 京橋GREEN YARD Dear |
||