

| タイプ |
Sタイプ |
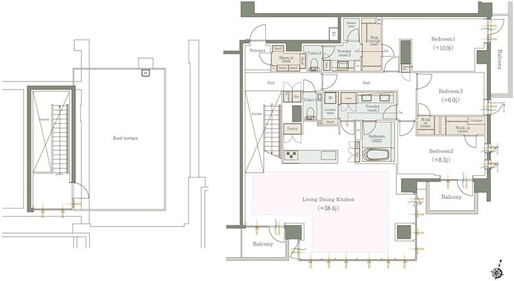
間取り |
3LDK+WTC+2WIC+SIC+P |
|---|---|---|---|
| 専有面積 |
166.41 ㎡ |
バルコニー面積 |
14.85 ㎡ |
| 所在地 |
東京都練馬区石神井町1丁目1341番1、他(地番) |
||
| 交通 |
西武池袋線「石神井公園」駅 徒歩4分 |
||
| 備考 |
※専有面積にトランクルーム面積:2.85㎡含む |
||