

| タイプ |
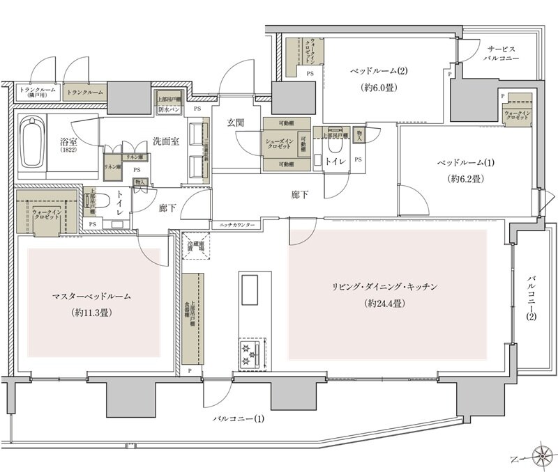
Gタイプ |
間取り |
3LDK+3WIC+SIC |
|---|---|---|---|
| 専有面積 |
118.87 ㎡ |
バルコニー面積 |
- |
| 所在地 |
東京都港区芝5丁目2番93(地番) |
||
| 交通 |
都営三田線「三田」駅 徒歩5分(A8出入口) |
||
| 備考 |
バルコニー(1)面積:21.03㎡ |
||