

| タイプ |
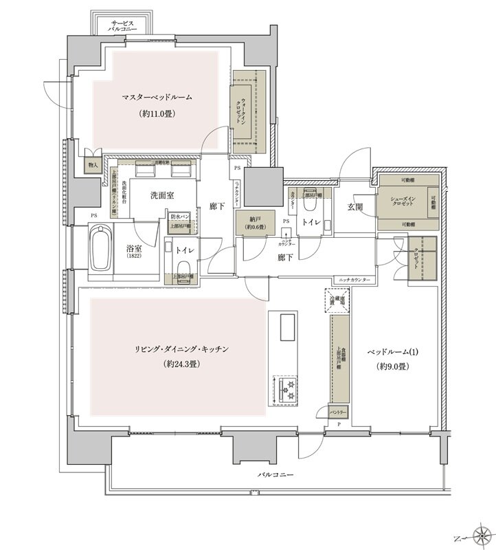
Fタイプ |
間取り |
2LDK+N+WIC+SIC |
|---|---|---|---|
| 専有面積 |
116.44 ㎡ |
バルコニー面積 |
18.60 ㎡ |
| 所在地 |
東京都港区芝5丁目2番93(地番) |
||
| 交通 |
都営三田線「三田」駅 徒歩5分(A8出入口) |
||
| 備考 |
サービスバルコニー面積:1.36㎡ |
||