
タイプ |
Bタイプ |
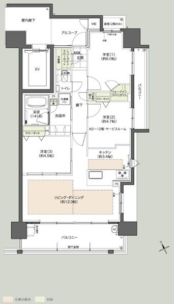
間取り |
3LDK+2WIC |
---|---|---|---|
専有面積 |
68.77 ㎡ |
バルコニー面積 |
22.98 ㎡ |
所在地 |
広島県広島市南区比治山本町1040番18 |
||
交通 |
バス利用:バス停「比治山橋」 停歩5分(広島バス) |
||
備考 |
アルコーブ面積:4.05㎡ |