

| タイプ |
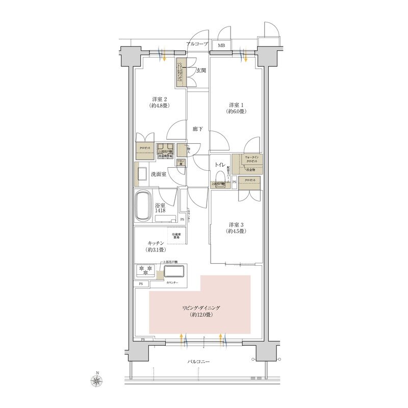
Dタイプ |
間取り |
3LDK+WIC |
|---|---|---|---|
| 専有面積 |
67.20 ㎡ |
バルコニー面積 |
8.96 ㎡ |
| 所在地 |
愛知県名古屋市瑞穂区御莨町5丁目32番(地番) |
||
| 交通 |
名古屋市桜通線「瑞穂区役所」駅 徒歩7分 |
||
| 備考 |
アルコーブ面積:2.45㎡ |
||