

| タイプ |
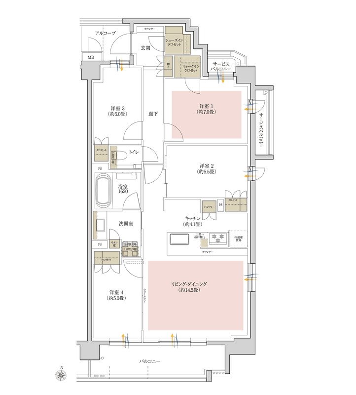
Eタイプ |
間取り |
4LDK+WIC+SIC |
|---|---|---|---|
| 専有面積 |
90.62 ㎡ |
バルコニー面積 |
9.36 ㎡ |
| 所在地 |
愛知県名古屋市瑞穂区御莨町5丁目32番(地番) |
||
| 交通 |
名古屋市桜通線「瑞穂区役所」駅 徒歩7分 |
||
| 備考 |
アルコーブ面積:2.32㎡ |
||