

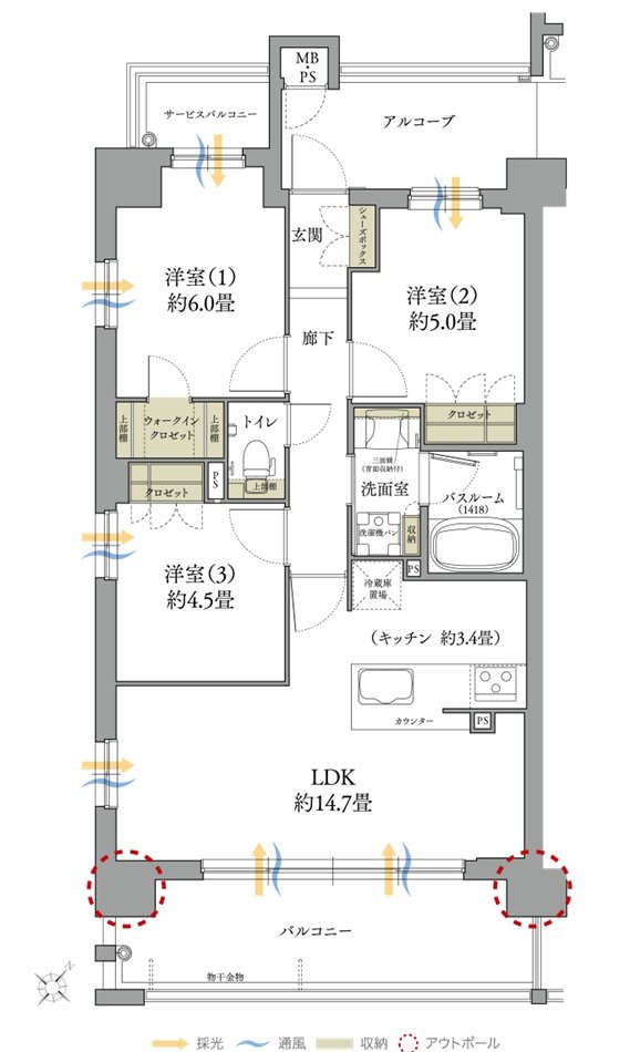
| タイプ |
D type |
間取り |
3LDK |
|---|---|---|---|
| 専有面積 |
65.53 ㎡ |
バルコニー面積 |
11.34 ㎡ |
| 所在地 |
兵庫県神戸市長田区神楽町3丁目101番7、101番19(登記簿) |
||
| 交通 |
地下鉄西神・山手線「新長田」駅 徒歩4分 |
||
| 備考 |
サービスバルコニー面積:2.62㎡ |
||