
タイプ |
Bg type |
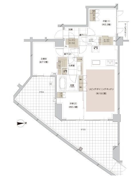
間取り |
3LDK+2WIC+SIC |
---|---|---|---|
専有面積 |
81.74 ㎡ |
バルコニー面積 |
- |
所在地 |
神奈川県川崎市宮前区小台1丁目4-1(地名地番) |
||
交通 |
東急田園都市線「宮前平」駅 徒歩4分 |
||
備考 |
サービスバルコニー面積:2.20㎡ |