

| タイプ |
SF type |
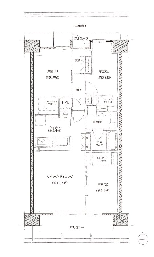
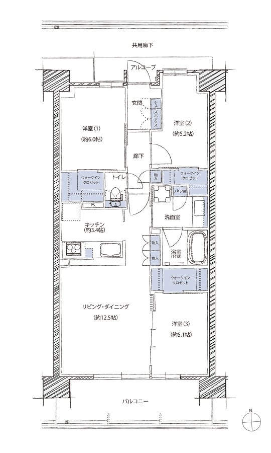
間取り |
3LDK+3WIC |
|---|---|---|---|
| 専有面積 |
73.30 ㎡ |
バルコニー面積 |
11.78 ㎡ |
| 所在地 |
愛知県名古屋市東区矢田3丁目1601番1、1602番、1603番、1604番、1605番、1606番 |
||
| 交通 |
名古屋市名城線「ナゴヤドーム前矢田」駅 徒歩8分 |
||
| 備考 |
アルコーブ面積:3.71㎡ |
||